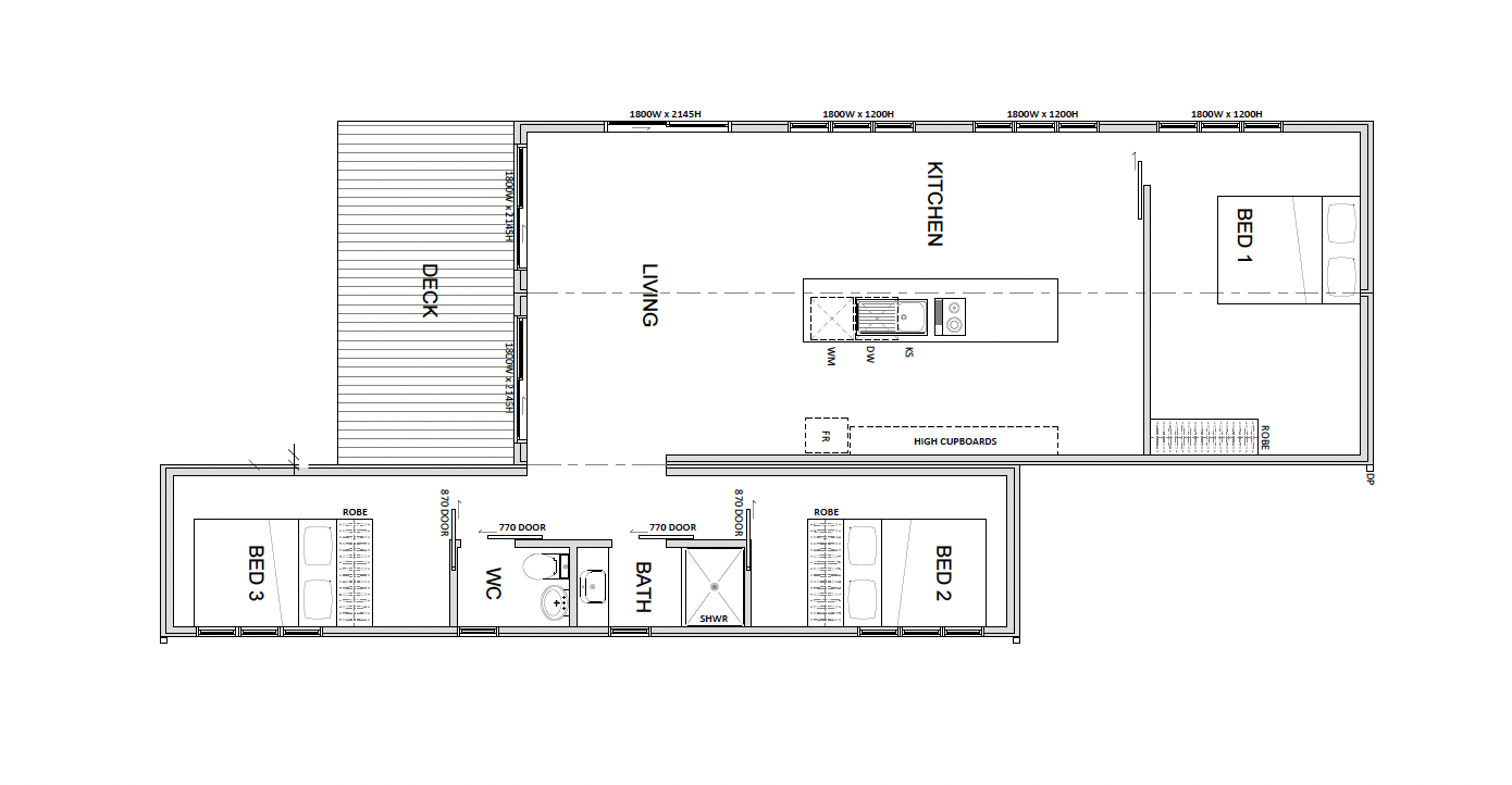
3 bedroom
3 bed / 1 bath / 960 sq. feet / $286,200*
An extension of our 2 bedroom offering this model has a double width living area that can be modified to accommodate a master bedroom.
For those that want two bathrooms we can also add in a compact bathroom to the Master bedroom space.
This unit also includes the decking in the ex factory price.
*Starting at $286,200 plus GST, Site Costs & Council Documentation






